Prehľad programovania
AutoCAD
- Tvorba dynamických blokov a ich parametrizácia
- Automatizácia tvorby výkresovej dokumentácie v zmysle vkladania blokov, vkladanie tabuliek, reportov, kusovníkov, QR alebo čiarových kódov a rohových pečiatok
- prepočet hodnôt, kvantít a pod.
- Synchronizácia atribútov blokov s ERP systémami
- Export údajov do rôznych formátov (doc, xls, csv, xml, pdf)
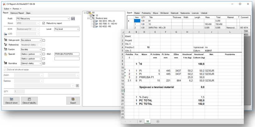
Inventor
- Tvorba a parametrizácia vlastného obsahového centra – štandardných dielov
- Inicializácia nomenklatúr a skladových čísel
- Špeciálne spracovanie kusovníkov zostavy v zmysle rôznej úrovne detailov
- Vlastné nastavenie pre rôzne typy podzostáv (referenčná,
- Filtrovanie, zlučovanie, prepočet kvantít
- Konfigurovateľný vzhľad reportu
- Synchronizácia s ERP
- Export do rôznych formátov (doc, xls, csv, xml, pdf)
Revit
- Tvorba špecializovaných parametrických rodín
- Automatizácia procesu projektovania stavby
- Automatická vkladanie prvkov, parametrizácia, polohovanie
- Spracovanie kusovníkov, prepočet, zoskupovanie, označovanie, párovanie
- Vykazovanie, prepočet dielov k montáži bez nutnosti ich modelovania (spojovací materiál, lemovacie prvky, tesnenia, výplne,…)
- Export kusovníkov do rôznych formátov (doc, xls, csv, xml, pdf)
Civil 3D
- Spracovanie šablón podzostáv pre líniové stavby
- Riadenie rozmerov, sklonu resp. prevýšenia modelu koridoru v oblúku
ProgeCAD
- detto
Inicializácia a štandardizácia
- Tvorba výkresových šablón
- Tvorba parametrických blokov (AutoCAD), štandardných dielov, obsahového centra (Inventor) a rodín (Revit)
- Inicializácia nomenklatúr a skladových čísel z externých databáz
Automatizácia tvorby modelov a výkresovej dokumentácie
- Automatické vkladanie blokov, modelov a ich parametrizácia
- Generovanie tabuliek, reportov, kusovníkov resp. rohových pečiatok do výkresového priestoru
- Oprava väzieb referenčných modelov výkresu
Spracovanie dát
- Spracovanie kusovníkov, prepočet, zoskupovanie, filtrácia,
- Párovanie dorezov, číslovanie prvkov, prepočet kvantít
- Doplnenie QR alebo čiarových kódov, náhľadov,
- Prepočet dielov k montáži resp. príslušenstva bez nutnosti ich modelovania (spojovací materiál, lemovacie prvky, tesnenia, výplne, baliaci materiál, spotrebný materiál…)
Import a Export
- Synchronizácia parametrov, atribútov a vlastností s ERP
- Synchronizácia kusovníkov s ERP
- Export kusovníkov do rôznych formátov (doc, xls, csv, xml, pdf) s možnosťou konfigurácie vzhľadu
- Generovanie viacúrovňových prepojených kusovníkov podzostáv
- Generovanie titulných listov projektovej dokumentácie
CVReport (doplnok pre Autodesk Inventor)

ACV + ECV (doplnok pre AutoCAD, MS Excel, SCIA)

Lindab Tools (doplnk pre ProgeCAD)


You must be logged in to post a comment.